Chatham

Dual two car garages flank a southern style auto court entrance to this unique atrium ranch. Rising ceilings to the stacked windows over the dining atrium and great room, draw attention upwards to the view across the rolling hills to the west. Locating the main family living and entertainment area behind the breakfast table gives a lodge-like impression to this most used living area. Natural maple floors and cabinetry further lighten the interior. A second kitchen, family room, and billiards area in the lower level complete this four bedroom home named after a delightfully open caribbean anchorage in the Grenadines.


 Construction Pictures  Rear Elevation -  Raw
 

 Roughin Pictures 
 Finished Pictures 
 Selection Sheet 
 Punch List 
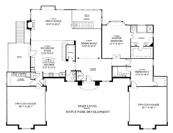
 Main Floor Plan 
 Lower Level Plan 
 Published article in Builder Architect about the previous HomeArama and Dave Forrest 

Tax Lot T001700803 $6,053 Winghaven Subdivision Annual fee 2003 $400
 Windows Video 

--By Maple Park Development Corporation on Lot 7 of Spy Glass Hill at Winghaven.


From St. Louis: West on I40/64 to mile 6 Winghaven Blvd, North (Right) to Phoenix Parkway, East (Right) to Spyglass, Right and immediately Left to 9015 Spyglass Place Drive.

 Lot 6 (Byrne)   Lot 8 (HIW)   Lot 3 (HomeSource)   Lot 27 (Kiem)   Lot 11 (O'Daniel's)   Lot 10 (REBuilders)   Lot 9 (Rowles)   Lot 30(Schroeder)   Lot 29 (TMH)   Lot 28 (Terbrock)   Lot 2 (Vantage)